ORACLE OFFICE BUILDING
Thesis Design

SITE DESCRIPTION
​
LOCATION: Marathahalli, Outer Ring Road, Bangalore, Karnataka.
AREA: 7.96 acres.
Site’s northern boundary edge is the nala. This gives a barrier in viewpoint and activities. But can be intervene for opportunity of interactive open spaces in the design.
The site is opened mainly from western side only. A kaccha road is there at eastern side which can be used as service road. The site is accessed from NH 44.
​
​
​
PROJECT BRIEF
ORACLE INDIA PVT. LTD. has planned to open its campus outside the US in Bangalore, marking a significant investment by the US-based online retailer in one of its fastest growing markets. Spanning 8 acres, the state-of-art campus will have ‘thousands’ of employees managing back-end operations of Oracle’s global businesses.
The design for Oracle’s corporate campus creates an integrated and sustainable vision of merging landscape and architecture to create a new form of symbiotic living and working. The building’s design will directly responds to the site’s climate, rich cultural heritage and clients’s goal of further elevating itself as a global leader in business consulting. IT, software engineering and outsourcing services.
SITE ANALYSIS

GEOGRAPHICAL FEATURES
​
1. The top soil of 0.3m is non-uniform.
2. The underlying layer is laterite upto 2.5 to 6.0m followed by disintegrated rock.
3. At some locations medium rock was met with at depths varying from 11.0 to 14.0 m. At other locations even at 15.0m medium rock was not met with.
4. No water table was met with in the boreholes at the time of exploration. However, perched water table is likely to occur during rainy season.
5. For the proposed structure shallow foundations can be given at any depth from 1.5m, resting the foundation on the late-rite / disintegrated rock layer.

Oracle Office Building - South-Western View | Main Entrance
CONCEPT
CONTEMPORARY GARDEN
​
‘Once called the "Garden City of India", this is no longer applicable to Bangalore, which is now a large, cosmopolitan city with diminishing green spaces and a large working population.’ This change is evident by the changing climate and environment quality.
​
​
​
LAND SUSTAINABILITY
Bengaluru is one of India’s most progressive and developed cities, blessed with a pleasant climate. The past decade has seen a mad surge of development, coupled with traffic congestion and rising pollution levels. The space is being compromised as IT buildings are coming up on very acre of land and the green belt is depleting at a very high rate. Hence, the cost ability to improve adverse condition has decreased due to shortage of land and the opportunity of taking up the garden vertically rises.
1. BROAD CONCEPT
​
​

2. FORM EVOLUTION
​
​


3. VERTICAL STACKING
​
​
4. TREE THEORY TO DESIGN BUILDING
​
​

‘The building is designed to be like a tree’ with strong and heavy roots that has all services incorporated and the ‘rest of the levels are projecting out like branches of the tree, holding the foliage’.
​
Structure of the building is compared to a tree as; the basement is root where main service functioning takes place, the cantilever act as branches to take in natural sunlight and finally the bio wall acts leaves foliage that are also prevents heat to enter and regulates temperature within the building.
SITE PLAN

Oracle Office Building - Site Plan
SOME INFOGRAPHICS ABOUT SITE PLAN...



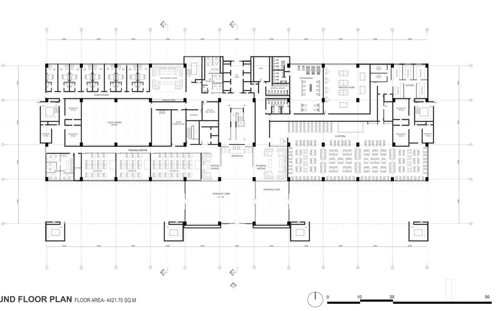
Oracle Office Building - Ground Floor Plan w.r.t. Site
AREA CALCULATIONS
​
1. Total Site Area = 32.235 sqm or 7.96 acres
2. Total built-up area = 40500 sqm
3. Ground Coverage = 6100 sqm
4. Percentage of Ground Coverage = 18.9%
5. Remaining Ground Coverage for Future expansion = 16.1%
6. Permissible F.A.R = 2.50
7. Achieved F.A.R = 1.26
8. Remaining F.A.R for future expansion = 1.24
9. Total Parking for cars: Stilt Floor(222) + Basement 1(404) + Basement 2(384) + Surface(50)=1060 ECUs
10. Total Parking for buses: 17
11. Percentage of Green on site = 40%
​
​
​
AREA PROGRAM
Office
Spaces
​
Reception
Waiting Area
Entrance Lobby
Workstations
Cubicles
Conference Rooms
Meeting Rooms
Presentation Areas
Washrooms
Utility rooms
Mech. Room (AHU )
IDF
Labs (Control Room)
Electrical Room
​
​
​
​
​
​
Area (Sqm)
​
15
50
250
4.0 - 4.5 sqm per person
35 @ 10 sqm
40 - 50
5-6 @ 30 sqm (10pax)
2 @ 60 sqm
150 – 180
10
4 @ 35 sqm
2 @ 15-20 sqm
2 @ 35 sqm
2 @ 35 sqm
​
​
​
​
​
​
Institution
Spaces
​
Training Centre
Indoor Games
Gym
Visitor's Suites (9)
Mini Bank
Travel Services
Medical Services
Shops
Food Court (Cafeteria)
Auditorium
​
​
​
​
​
​
Area (Sqm)
​
300 - 350
500
300
350
150 sqm
45 - 50
150 - 200
150 - 200
1000 - 1200
1200 – 1500
(800-850 pax)
​
​
​
​
​
​
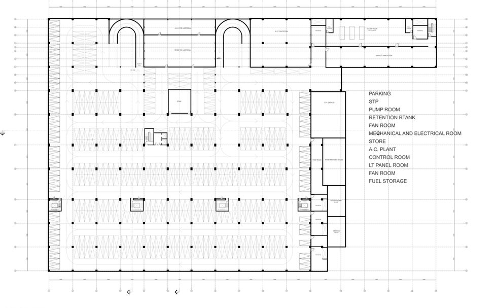
Services
Area (Sqm)
​
250
100
150
300
150
250 - 280
100
500 - 550
300 - 315
500
400 - 450
150 - 200
250
300 - 320
200
250 - 275
1100 (950 basement + 150 surface)
​
​
​
​
​
​
Spaces
​
Security Office
Registration Desk
Generator Room (DG)
Control Room of DG
Pump Room
STP
WTP
Retention Tank
LT Panel Room
A.C. Plant Room
Electric Sub-Station
Store
Audi Store
Audi A.H.U. Room
Fan Room
Battery Rooms
Kitchen Service Area
Data Center
Parking
​
​
​
​
​
​

Oracle Office Building - South Eastern View
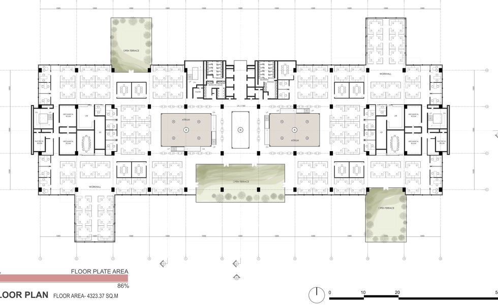
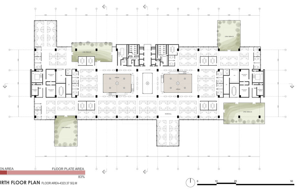
PLANS GALLERY

Section AA'
Section CC'

Section BB'
DETAILS shown in Section AA' and Section CC'...
DETAIL 1 - Facade System

Sections
Double plane glass with outer glass is Transparent Luminescent Solar Concentrator (TLSC) and inner glass is Electric Glass.
​
Switch Glass: Layer of film between two glass.
1. very durable
2. can be used as projector screen
3. can last for 15 - 20 years
4. 98% UV protection
5. 40% solar reduction
EXHAUST AIR FACADE
To collect air from tower office, and instead of allowing it to escape into the atmosphere, redirect it back down the double glass skin cavities. Sensors within cavities will modulate dampers at the top of the building, directing the air to the optimal zones of the cavities depending on the time of day and outdoor temperature.
​
45 degree Celsius - 30 degree Celsius
Additional dampers will allow filtered exterior air to enter directly into cavity during economizing periods, such as at night and winter when the outdoor air is lower in temperature then the collected exhaust air.
Plan
DETAIL 2 - Introducing Daylight at any Time

This is a day lighting system that collects natural light with a parabolic dish concentrator and delivers it through pipes to any place in the building. the collector re-directs the light into an “ULTRA SUN LIGHT CONCENTRATOR”, which channels it into the aperture of a small light pipe. because of the latest technology uses “I.R. CUT COATING TECHNOLOGY, there is no heat loss or gain associated with the transmitted day light”, which reduces heating and air-conditioning cost.
DETAIL 3 - Bio-wall System

RIGID PVC SHEET
METAL TUBE SCAFFOLDING
EXTERIOR WALL
TWO SHEETS OF POLY-AMIDE FELT
Section
DETAIL 4 - Truss System used in Structure
There are two ties in the back-span of the truss. the top and the bottom slab will be acting as a chord and tie of the truss respectively . these trusses are definitely located on both the sides of the slab.

DETAIL 5 - Air Purifying Plants

SPECIAL MATERIAL - Hemcrete

TRADITIONAL HEMCRETE is a bio-composite, thermal walling material from ‘hemp’, ‘lime’ and ‘water’. CARBON NEGATIVE HEMP.

North Elevation

East Elevation

About 40% of the total site is covered with green collaboration areas to reduce the sun reflections and radiation. Also, these collaboration areas caters the social life among the employees working here. Employees can interact among themselves here, play sports for recreational purposes to release stress due to work.
Oracle Office Building - Outdoor Collaboration Spaces

East and west facade receives highest solar radiation and heat as the sun is very low in these two directions. therefore the idea of providing service cores on facade facing these direction came into existence. To minimize the solar heat gain (SHG), vertical bio wall perfectly blends on the concrete wall. this enhance the the idea that there is very less land available
Oracle Office Building - Bio-wall

BOX CANTILEVERS are projecting out from the typical floor plates at the length of 14.5 m. The cantilever are simply supported through very simpler structure tricks. The roof of the cantilevers are proposed as green breakout area on every floor to minimize the solar heat radiation and monotonous office life.
Oracle Office Building - Box Cantilevers

Oracle Office Building - Terraced Garden Around the Building

Oracle Office Building - Open Terrace Garden on Each Floor

Oracle Office Building - View of Entrance Foyer Covered with Glass














